# 12/33, Sakthi Nagar, 3rd Street, Choolaimedu, +91 94440 44914
Starrhome
  • HOME
  • ABOUT US
  • PROJECTS
    • ONGOING PROJECTS
    • COMPLETED PROJECTS
  • CONTACT

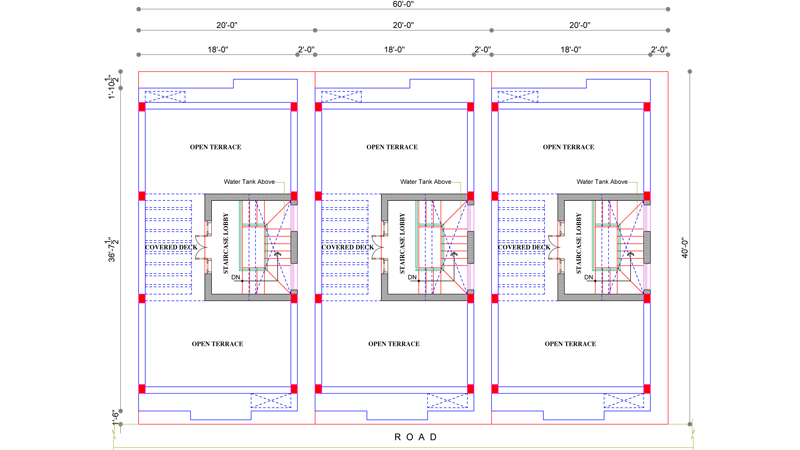
MADURA AVENUE AT KOVUR

  • Client Starr Home
  • Budget 72 Lakshs
  • Surface Area 1200 sq. ft
  • Year completed Ongoing

DOWNLOADS

MADURA AVENUE AT KOVUR
Image
Image
Image
Image
© www.Starrhome.in
  • HOME
  • ABOUT US
  • PROJECTS
  • CONTACT